Happy Valley Net Zero Homes
Happy Valley Net Zero Homes
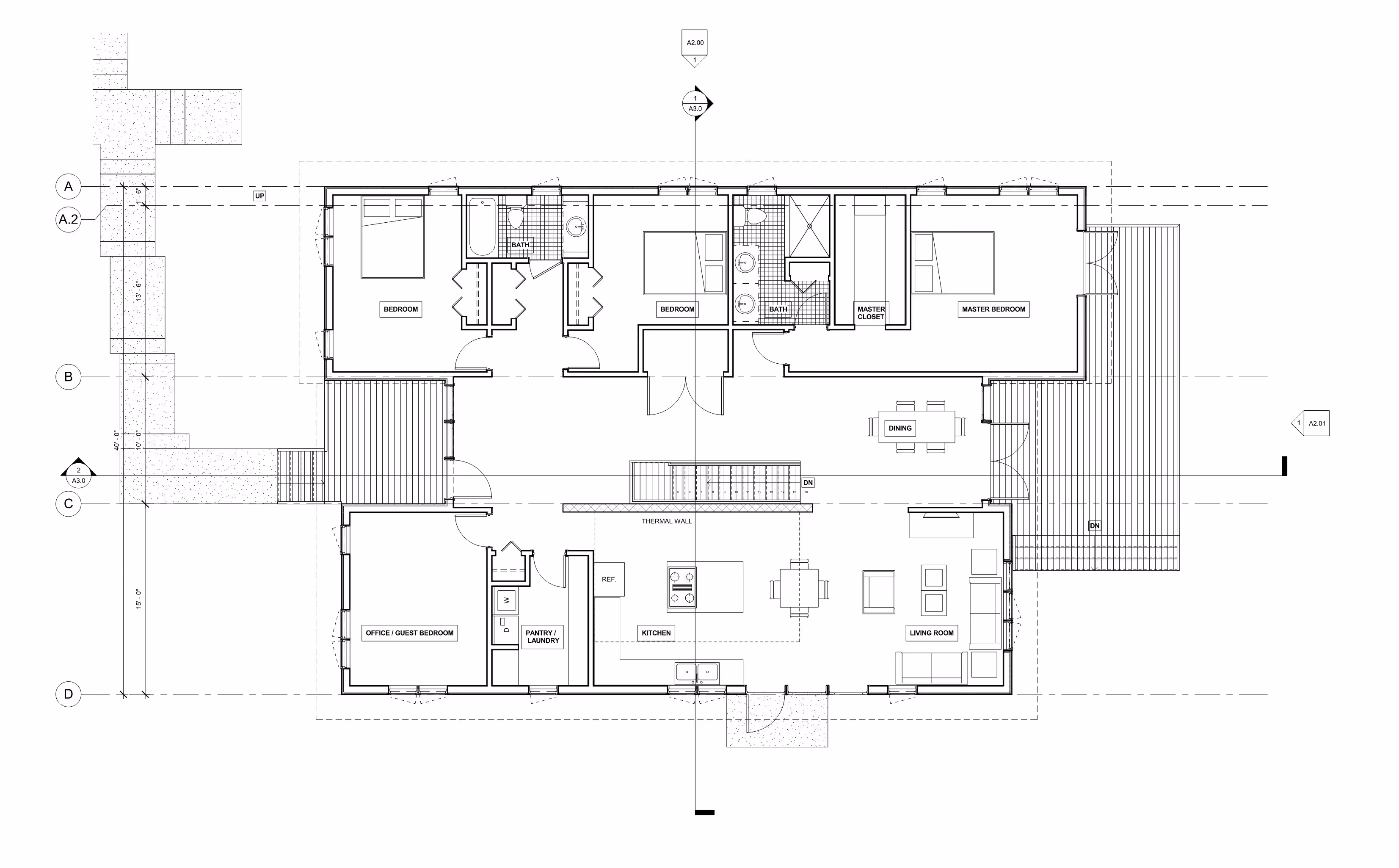
This project is a showcase of cutting-edge sustainable residential design, demonstrating that homes can be beautiful, comfortable, and generate as much energy as they consume. The two Happy Valley homes were designed from the ground up to achieve net-zero energy performance, representing the highest standard of high-performance building. The design goes beyond energy, however, to embrace a holistic vision of health—for both the occupants and the planet.
The homes are constructed with healthy, natural materials, including rammed earth Watershed Block and lime plaster, which create a non-toxic and breathable indoor environment. The design is a masterclass in passive solar principles, with careful orientation, a highly insulated envelope, and strategic shading to minimize energy needs. This is complemented by a full suite of active sustainable systems, including rooftop solar panels, rainwater capture systems, and native landscaping to restore the site's ecology.





